skip to Main Content

Construction d’une Micro-crèche

  • Maitre d’ouvrage : Ville de Saint Martin Lestra
  • Mandataire : DALVERNY CHARLOTTE
  • Entreprise : MGC CONSTRUCTION
  • Missions : Avant projet – Documents de consultation des entreprises (DCE) – Exécution (EXE)
  • Année de livraison : 2023
  • Année de réalisation : 2022

Caractéristiques de la mission :

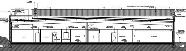
  • Surface de d’environ 160m² de plain-pied
  • Dimensionnement d’un vide sanitaire accessible avec un terrain en pente
  • Dimensionnement d’une charpente bois
  • Zone sismique 2 – Catégorie 3
Back To Top
×Close search
Rechercher